SF-3-211-517

Продам 2-кімнатну квартиру

Розташування: Харків, Роганський напрямок, Сонячний (761), Героїв Харкова просп.
2 Кімнат
48 м2
9/9 поверх
Ціна
30 000 $

Інформація

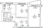
Продам двокімнатну квартиру з гарним ремонтом. Можлива продаж через сертифікат. Металопластикові вікна, балкон зі склінням, броньовані вхідні двері. Замінена електропроводка. Нова сантехніка, замінені батареї. Велика гардеробна. Технічний поверх. Є частково меблі. Квартира вільна.

30 000 $ вартість об'єкта
630 $ ціна за м2
47.60 м2
2 кімнат
9 Поверх
9 К-ть поверхів

Параметри

центральна Вода:
центральне Опалення:
панель Матеріал стін:

Додатково

Дата оновлення інформації: 23.02.2026 12:18;