SF-3-002-200

Продам 1-кімнатну квартиру, ЖК Dobre Misto

Розташування: Вишневе, Київська область, Бучанський район, Машинобудівників вул., 1В
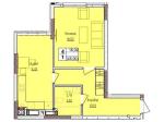
1 Кімнат
45 м2
6/9 поверх
Ціна
46 000 $

Інформація

Центр Продажу Нерухомості продає 1-кімнатну квартиру в ЖК "Добре Місто" (Києво-Святошинський р-н), 45 кв. м, без ремонту.
Адреса: вул. Машинобудівників, Вишневе.
Поверх 6/9, комфорт-клас.

Відмінна пропозиція для тих, хто бажає створити затишок та комфортний будинок на свій смак. Розташування району також дозволить насолоджуватися достатньою інфраструктурою та зручностями міста.

Не пропустіть можливість стати власником цієї чудової квартири!

46 000 $ вартість об'єкта
1 022 $ ціна за м2
45 м2
1 кімнат
6 Поверх
9 К-ть поверхів

Параметри

центральна Вода:
центральне Опалення:

Додатково

Дата оновлення інформації: 02.02.2026 14:49;