SC-208-758

Продам приміщення вільного призначення

Розташування: Харків, Історичний музей, Центральні райони, Нагірний, Григорія Сковороди вул.
1 Кімнат
50 м2
Ціна
25 000 $

Інформація

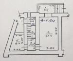
Центр Продажу Нерухомості пропонує підвальне приміщення в центрі, вул. Григорія Сковороди, у дворі.
Два окремих входи. Загальна площа 50 м2. Свій с/у. Усі комунікації замінені.

Інфраструктура

Громадський транспорт: метро - Історичний музей;
25 000 $ вартість об'єкта
500 $ ціна за м2
50 м2
1 Приміщень

Додатково

Дата оновлення інформації: 14.12.2025 16:03;