SF-3-300-620

Продам 1-комнатную квартиру в новостройке, ЖК «Шекспира»

Местоположение: Харьков, 23 Августа, Алексеевское направление, Павлово Поле, Шекспира пер., 1
1 Комнат
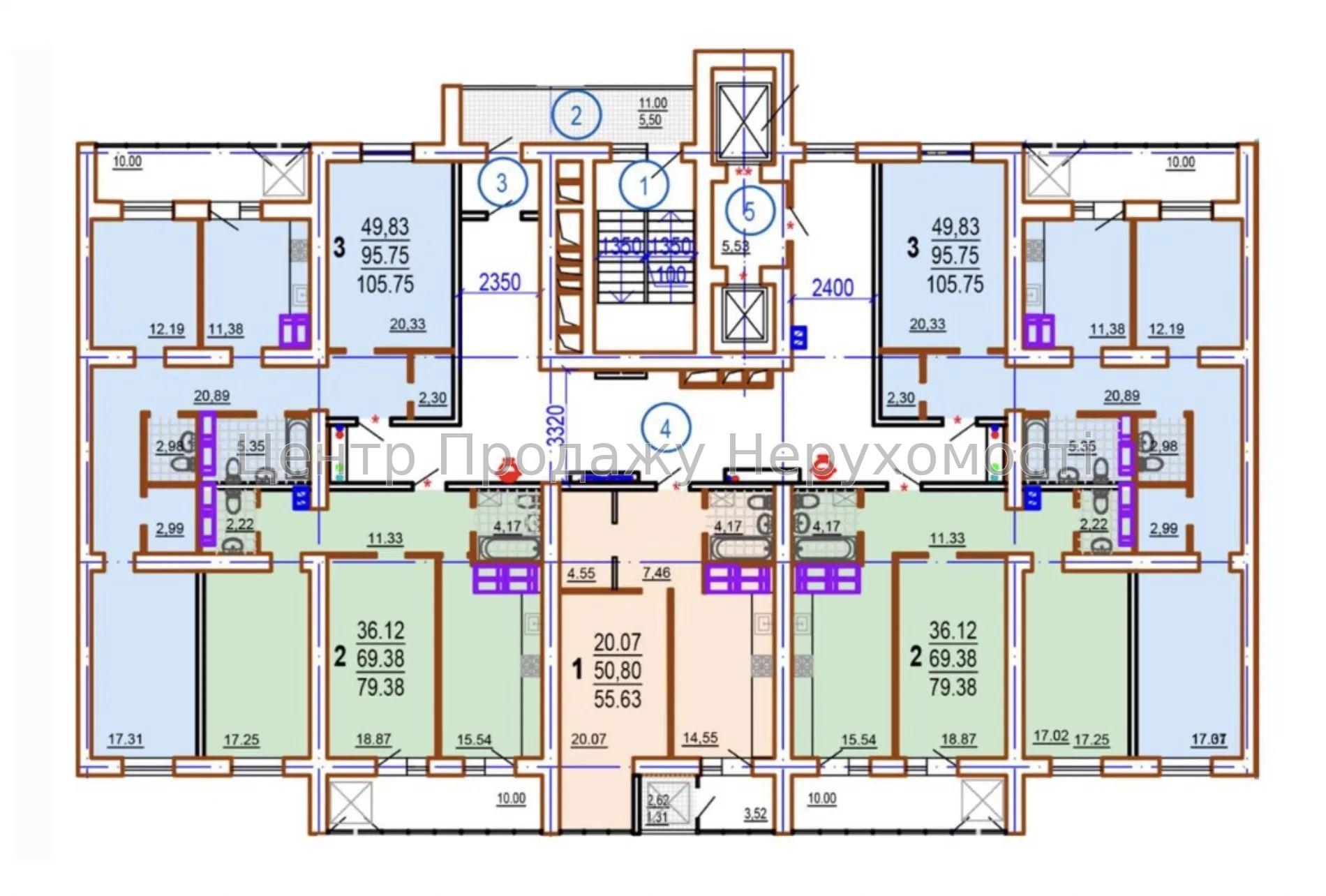
56 м2
7/16 7
Цена
29 000 $

Информация

Продам велику 1к. квартиру в новобудові комфорт-класу ЖК Шекспіра, в 1 будинку. Надійний забудовник Харкова - Житлобуд-1. Вікна у тиху зону, велика лоджія. Площа квартири 55 м2. Легко перепланувати в євродвушку. Квартира знаходиться на 7/16 поверсі. Вікна у бік вул.Клочківської. Є свій великий підземний паркінг, зони відпочинку, дитячі майданчики, обслуговування прибудинкової території. Матеріал стін - цегла, утеплена мінеральною ватою 100мм по всьому периметру. У комплектацію квартири входять якісні мп-вікна, горизонтально розведене опалення та встановлені радіатори, підведення гарячої, холодної води, електрики, пожежної сигналізації, металеві двері. Відмінний варіант для тих, хто цінує активне життя в центрі великого міста, зручність та практичність. Супер місце по інфраструктурі – все в пішій доступності всі блага – від центрального парку до супермаркету та салонів краси, транспорт, бізнес-центри та відмінна розв'язка для виїзду у будь-якому напрямку міста!

Инфраструктура

Общественный транспорт: метро - 23 Августа (15 мин. пешком, 15 мин. на транспорте);
29 000 $ стоимость объекта
522 $ цена за м2
55.60 м2
1 комнат
7 Этаж
16 Этажность

Параметры

центральная Вода:
центральное Отопление:
кирпич Материал стен:

Дополнительная информация

Дата обновления информации: 06.04.2026 10:25;