SF-3-253-209

Продам 2-комнатную квартиру в новостройке, ЖК «Победы 86»

Местоположение: Харьков, Победа, Алексеевское направление, Алексеевка, Победы просп., 86А
2 Комнат
56 м2
6/9 6
Цена
34 000 $

Информация

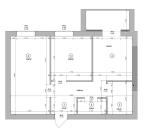
У продажу 2 кімнатна квартира, площею 56 м2 у будівельному стані, встановлені лічильники тепла.
Адреса Пр. Перемоги 86 А, 6 поверх. Вікна квартири виходять на ліс.

Инфраструктура

Общественный транспорт: метро - Победа (25 мин. пешком, 15 мин. на транспорте);
34 000 $ стоимость объекта
607 $ цена за м2
56 м2
2 комнат
6 Этаж
9 Этажность

Параметры

центральная Вода:
центральное Отопление:

Дополнительная информация

Дата обновления информации: 27.03.2026 15:30;