SF-3-018-297

Продам 1-комнатную квартиру, ЖК «Победы 86»

Местоположение: Харьков, Победа, Алексеевское направление, Алексеевка, Победы просп., 86
1 Комнат
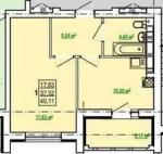
41 м2
4/9 этаж
Цена
24 000 $

Информация

У продажу 1 кімнатна квартира у новобудові, площа 41м2, 4 поверх, вікна віходять на ліс. Будівельний стан.
Ідеальне місце для життя в тиші та гармонії з природою. Ліс знаходиться поруч. Найкраща ціна. Відмінний варіант для тих, хто шукає житло в новобудові в екологічно чистому районі.
Телефонуйте, щоб домовитися про перегляд.
097 62 83 992

Инфраструктура

Общественный транспорт: метро - Победа (25 мин. пешком, 15 мин. на транспорте);
24 000 $ стоимость объекта
585 $ цена за м2
41 м2
1 комнат
4 Этаж
9 Этажность

Параметры

центральная Вода:
центральное Отопление:

Дополнительная информация

Дата обновления информации: 27.01.2026 11:30;