Продам нежилую недвижимость, помещение свободного назначения, 70 м², Советская, 85 000 $, косметический ремонт

Продам, нежилую недвижимость, помещение свободного назначения, 70 м2, косметический ремонт

Продам помещение свободного назначения
85 000 $

Описание


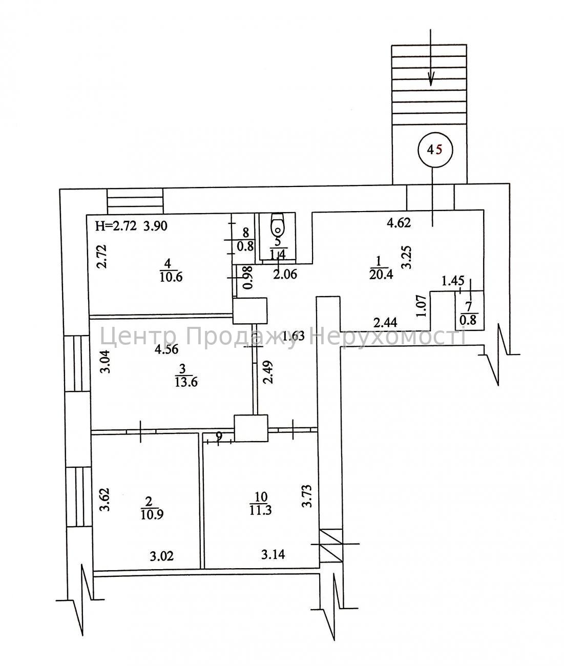
Продаю власний об'єкт в центрі Харкова, майдан Павлівский, 5, загальна площа 70 кв. м, окремий вхід з вулиці Університетська. Хол, санвузол і 4 кабінети (2 роздільні і 2 суміжні кімнати). Два незалежних введення електрики 220V (одна фаза 7кВт) і 380V (три фази по15кВт) Три введення інтернет провайдерів (Тріолан, Київстар, Укртелеком) Скромний ремонт в стилі лофт. Потужні броньовані двері, сигналізація, відеоспостереження, кондиціонер, сейф. Припливно-витяжна система вентиляції. За документами - житловий фонд. Більше фотографій і планування є в МЛС. Можу оплатити послуги агентства нерухомості замість покупця. Потужні броньовані двері, сигналізація, відеоспостереження, кондиціонер, сейф. Припливно-витяжна система вентиляції. За документами - житловий фонд. .


Основная информация

  • Цена85 000 $
  • Статус Актуально
  • Место расположенияХарків, Харківська область
  • АдресПавловская площ.
  • РайонСоветская
  • Ремонткосметический ремонт
  • Уникальный номерSC-177-781
  • Дата добавления2023-07-03
  • Дата изменения2025-12-14
  • Общая площадь70
  • Ремонткосметический ремонт

Удобства

Похожая недвижимость

Продам

Продам, нежилую недвижимость, помещение свободного назначения, 70.40 м2, без ремонта

  • Количество комнат: 1
  • Общая площадь: 70.40 м2
  • Этаж / этажи: Подвал/ 9
  • Район: Спортивная, р-н ст. метро
  • Адрес: Гагарина просп.

Продам

Продам, нежилую недвижимость, помещение свободного назначения, 324 м2, без ремонта

  • Количество комнат: 1
  • Общая площадь: 324 м2
  • Этаж / этажи: 1/ 1
  • Район: Восточный пос.

Продам

Продам, нежилую недвижимость, помещение свободного назначения, 30 м2, косметический ремонт

  • Общая площадь: 30 м2
  • Этаж / этажи: 1/ 1
  • Район: Нагорный
  • Адрес: Сумская ул.

Продам

Продам, нежилую недвижимость, помещение свободного назначения, 50 м2

  • Количество комнат: 1
  • Общая площадь: 50 м2
  • Район: Нагорный
  • Адрес: Пушкинская ул.

Продам

Продам, нежилую недвижимость, помещение свободного назначения, 180 м2, без ремонта

  • Общая площадь: 180 м2
  • Этаж / этажи: Цоколь/ 5
  • Район: Южный вокзал
  • Адрес: Евгения Котляра ул.

Продам

Продам, нежилую недвижимость, помещение свободного назначения, 38.30 м2, без внутренних работ

  • Количество комнат: 2
  • Общая площадь: 38.30 м2
  • Этаж / этажи: Цоколь/ 12
  • Район: Холодная гора Ленинский
  • Адрес: Холодногорская ул.

Продам

Продам, нежилую недвижимость, помещение свободного назначения, 72 м2, без ремонта

  • Количество комнат: 1
  • Общая площадь: 72 м2
  • Этаж / этажи: 1/ 5
  • Район: Павлово поле
  • Адрес: Науки просп.

Продам

Продам, нежилую недвижимость, помещение свободного назначения, 146 м2, косметический ремонт

  • Количество комнат: 1
  • Общая площадь: 146 м2
  • Этаж / этажи: Цоколь/ 16
  • Район: Алексеевка
  • Адрес: Ахсарова Энвера ул.

Продам

Продам, нежилую недвижимость, помещение свободного назначения, 45 м2, косметический ремонт

  • Количество комнат: 1
  • Общая площадь: 45 м2
  • Этаж / этажи: 1/ 5
  • Район: Советской армии, р-н ст. метро
  • Адрес: Ощепкова Андрея ул.
X

Предложить цену

Этот пункт необходим
Успешно отправлено